11422 Lima Dr

San Antonio, TX 78213

11422 Lima Dr

  • San Antonio, TX 78213
  • Larkspur
  • $387000
  • 3Bed
  • 2.5Bath
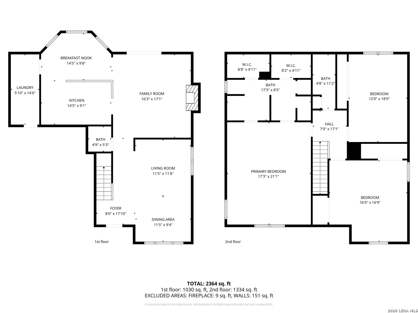
  • 2,558SQFT

Details

StatusPending
Year Built2000
CountyBexar
FlooringCeramic Tile, Wood, Laminate
Lot Size0.161
ParkingTwo Car Garage
Total Stories2
CoolingOne Central
School District North East I.S.D.
Schools Churchill, Eisenhower, Larkspur
FireplaceOne, Living Room
Property Type Single Family Detached
11422 Lima Dr San Antonio TX 78213
property description

Welcome to this beautifully updated gem in the heart of 78213, where style meets unbeatable location. From the moment you arrive, the fresh landscaping and custom iron front door create striking curb appeal and set the tone for what's inside. Step through the entry to gleaming hardwood floors and a matching custom iron stair railing that adds architectural character. The expansive kitchen is truly the heart of the home, featuring granite countertops and a massive 10-foot island - perfect for everyday living and effortless entertaining. The inviting living room centers around a working wood-burning fireplace, creating a cozy space to gather. Upstairs, you'll find durable vinyl flooring throughout (no carpet!) and a spacious Primary Suite complete with generous His & Hers closets. Major system updates provide peace of mind, including a brand-new HVAC system (December 2025) and a roof replaced in 2020. Outside, enjoy a two-car garage, refreshed front and back landscaping, and a large permanent on-site shed offering exceptional storage. Situated in a quiet, walkable neighborhood just 15 minutes from Downtown, The Pearl, La Cantera, and the Medical Center, this location is hard to beat. Indulge in a true foodie lifestyle with Clementine, Tu Asador, Max's Sister, and Sushihana just minutes away, plus multiple H-E-Bs nearby. Dog lovers will appreciate easy access to Phil Hardberger Park. This home delivers the perfect blend of character, modern updates, and central convenience.

LOCATION


Courtesy of Kuper Sotheby's Int'l Realty

This real estate information comes in part from the Internet Data Exchange/Broker Reciprocity Program . Information is deemed reliable but is not guaranteed.
© 2017 San Antonio Board of Realtors. All rights reserved.