1322 Arcadian Rose

San Antonio, TX 78245

1322 Arcadian Rose

  • San Antonio, TX 78245
  • Arcadia Ridge
  • $466990
  • 4Bed
  • 3.5Bath
  • 2,934SQFT

Details

StatusNew
Year Built2026
CountyBexar
FlooringVinyl
Lot Size0.14
ParkingTwo Car Garage
Total Stories2
CoolingOne Central
School District Northside
Schools William Brennan, Bernal, Mora
FireplaceNot Applicable
Property Type Single Family Detached
1322 Arcadian Rose San Antonio TX 78245
property description

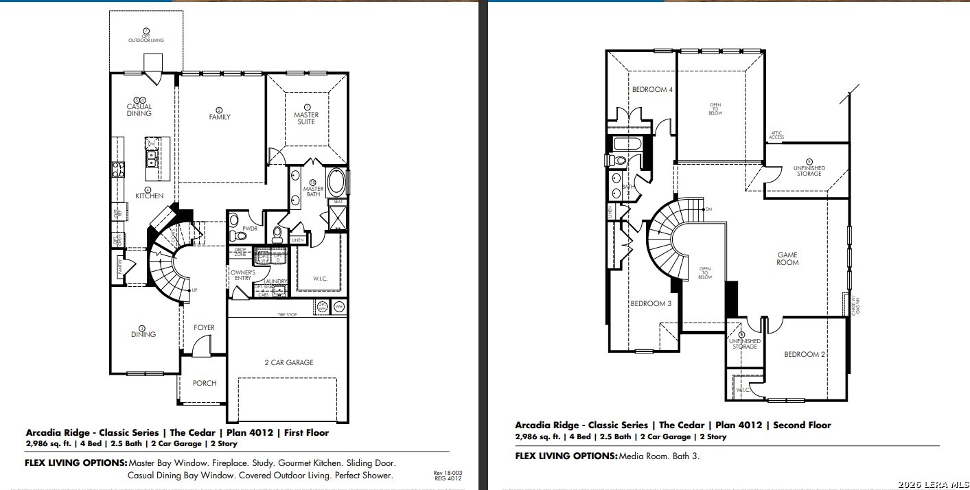
Brand new, energy-efficient home available by Jun 2026! The Cedar's curved staircase is the centerpiece of this sprawling open-concept. Cook dinner in the kitchen without missing the conversation in the living room. Upstairs, the game room affords endless possibilities. Starting in the $300s, Arcadia Ridge spans approximately 700 acres in Far Northwest San Antonio. This master-planned community features exceptional amenities, including a community pool, scenic trails, and a playground. Conveniently located near Loop 1604 and US-90, residents enjoy quick access to shopping, dining, and entertainment. The community is served by the highly rated Northside ISD schools, offering an excellent place.Each of our homes is built with innovative, energy-efficient features designed to help you enjoy more savings, better health, real comfort and peace of mind.

LOCATION


Courtesy of Meritage Homes Realty

This real estate information comes in part from the Internet Data Exchange/Broker Reciprocity Program . Information is deemed reliable but is not guaranteed.
© 2017 San Antonio Board of Realtors. All rights reserved.