146 Frio Estates Dr

Moore, TX 78057

146 Frio Estates Dr

  • Moore, TX 78057
  • Frio Estates
  • $225000
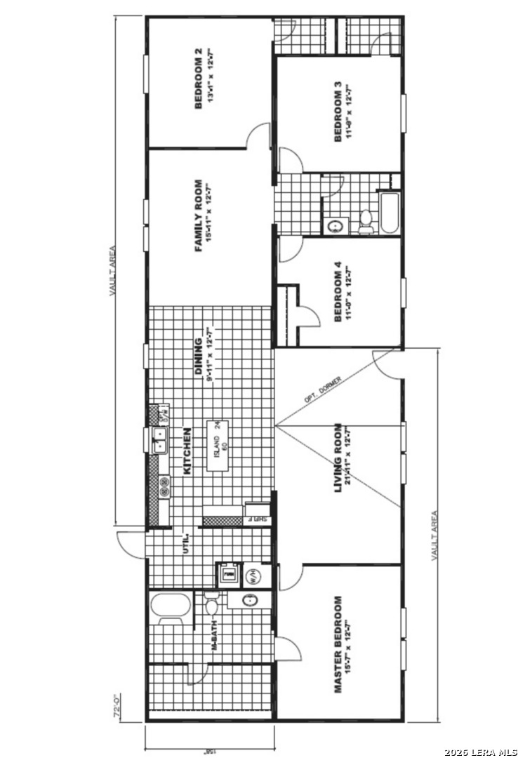
  • 4Bed
  • 2Bath
  • 2,016SQFT

Details

StatusPrice Changed
Year Built2023
CountyFrio
FlooringVinyl
Lot Size1.55
ParkingNone/Not Applicable
Total Stories1
CoolingOne Central
School District Pearsall
Schools Pearsall High School, Pearsall Junior High, Ted Flores Elementary
FireplaceNot Applicable
Property Type Manufactured
property description

**USDA Eligible! Welcome to peaceful country living in Moore, TX! This brand-new Clayton manufactured home offers 4 bedrooms, 2 full bathrooms, and a bright open-concept floor plan designed for both comfort and functionality. The primary suite is thoughtfully positioned on its own private side of the home, featuring a spacious walk-in closet and separation from the other three bedrooms-perfect for added privacy. The open kitchen flows seamlessly into the living and dining areas, and all kitchen appliances convey, making this home truly move-in ready. Situated on a 1.55-acre corner lot, the property provides exceptional seclusion and tranquility, surrounded by open space and peaceful views. With plenty of room to roam, garden, or unwind, this property offers the ideal balance of quiet country living with convenient access to town amenities. Property is well equipped with an on-site private water well, septic system, and existing electrical - making it truly move-in ready and convenient. The mobile home has been professionally retrofitted and is eligible for financing, offering added peace of mind and flexibility! If you're looking for space, serenity, and a brand-new home to make your own, this one checks all the boxes!

LOCATION


Courtesy of Keller Williams Heritage

This real estate information comes in part from the Internet Data Exchange/Broker Reciprocity Program . Information is deemed reliable but is not guaranteed.
© 2017 San Antonio Board of Realtors. All rights reserved.