162 Oak Wood Rd

Kerrville, TX 78028

162 Oak Wood Rd

  • Kerrville, TX 78028
  • Out Kerr County
  • $585000
  • 3Bed
  • 2Bath
  • 2,252SQFT

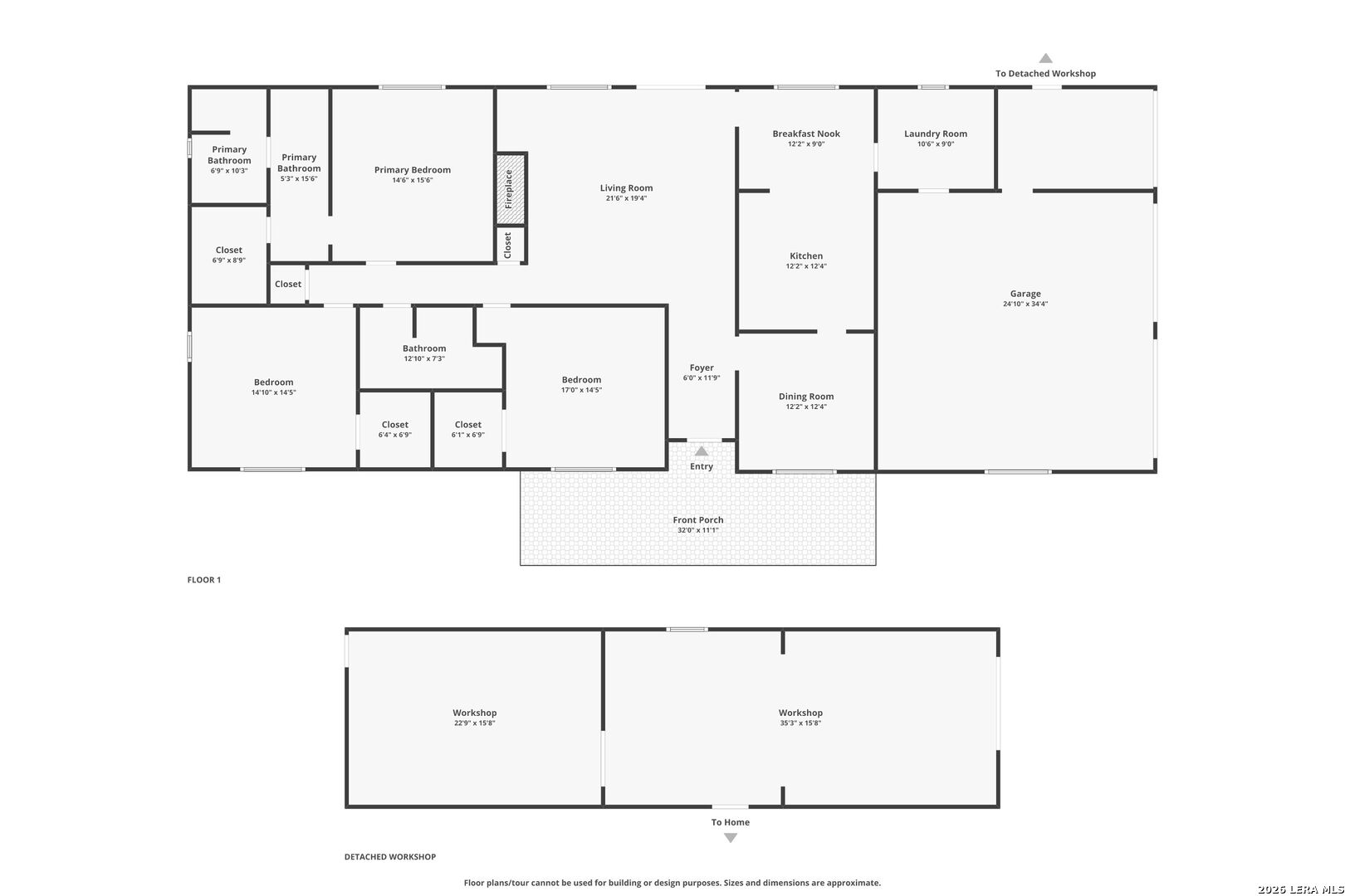
Details

StatusNew
Year Built1985
CountyKerr
FlooringCarpeting, Ceramic Tile, Wood
Lot Size0.86
ParkingThree Car Garage, Attached
Total Stories1
CoolingOne Central
School District Kerrville.
Schools Kerrville, Kerrville, Kerrville
FireplaceOne
Property Type Single Family Detached
162 Oak Wood Rd Kerrville TX 78028
property description

Escape to the charm of country living with this beautiful 3/2 home on nearly an acre! Step inside to warm hardwood floors and a striking vaulted wood ceiling that creates an open, inviting feel in both the living room and primary bedroom. The cozy fireplace makes the perfect centerpiece for relaxing evenings. Outside, you'll find mature trees and a peaceful, quiet neighborhood setting just minutes from Kerrville. The spacious lot offers room for RV parking, animals, and a garden ideal for those looking to enjoy a little extra space and freedom. A welcoming front porch provides the perfect spot to relax and take in the surroundings. The property also features a large workshop with endless possibilities perfect for projects, storage, or a creative space. An approximate 1,000-gallon underground water catchment system adds convenience for backyard irrigation. Endless possibilities await!

LOCATION


Courtesy of Keller Williams City-view

This real estate information comes in part from the Internet Data Exchange/Broker Reciprocity Program . Information is deemed reliable but is not guaranteed.
© 2017 San Antonio Board of Realtors. All rights reserved.