1825 Savanna Ridge Ranch

Lometa, TX 76853

1825 Savanna Ridge Ranch

  • Lometa, TX 76853
  • Austin County School Land 3 Le
  • $550000
  • 3Bed
  • 2Bath
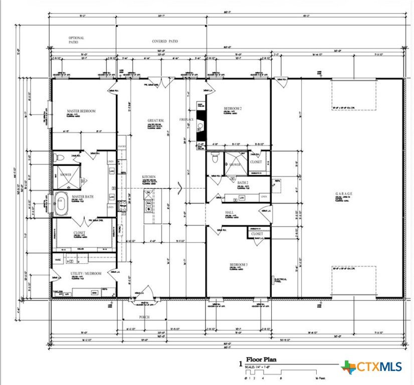
  • 2,050SQFT

Details

StatusActive
Year Built2020
CountyLampasas
Flooring
Lot Size20.02
ParkingAttached, Garage, Oversized, RvAccessParking
Total Stories
CoolingElectric
School District Lometa ISD
Schools Lometa HighLometa Elementary
FireplaceElectric
Property Type
property description

Be the envy of all your friends while living in this custom barndominium that has views for miles setting on 20 plus acres in a gated community with city water! Double full RV hook sites w/ separate breakers, an oversized garage, covered patio including a creek and natural pond! Huge garage can be used for parking, a man cave, workshop space or whatever you desire! Cooking is going to be a lot more fun with your oversized granite counter topped island, Knotty Hickory Not Pine cabinets w/ soft closing drawers, glass back splash, under cabinets lighting, stainless steel appliances, gas stove and fun barrel light fixtures. And with the open floor plan you will be able to easily entertain. Stained concrete flooring, recessed lighting, raised ceilings, floating shelves. Enjoy your large owners suite featuring a walk in closet, cowboy sized shower w/Spa rain shower head, Jacuzzi tubBarn door master closet, Epoxy Floors, double vanity, with wine barrel vanities with easy access for repairs. Built in mud storage with custom lighting.

LOCATION


Courtesy of Scoggins Realty, Llc

This real estate information comes in part from the Internet Data Exchange/Broker Reciprocity Program . Information is deemed reliable but is not guaranteed.
© 2017 San Antonio Board of Realtors. All rights reserved.