1916 Cupples

San Antonio, TX 78226

1916 Cupples

  • San Antonio, TX 78226
  • Edgewood
  • $469900
  • N/ABed
  • N/ABath
  • 2,327SQFT

Details

StatusPrice Changed
Year Built2022
CountyBexar
Flooring
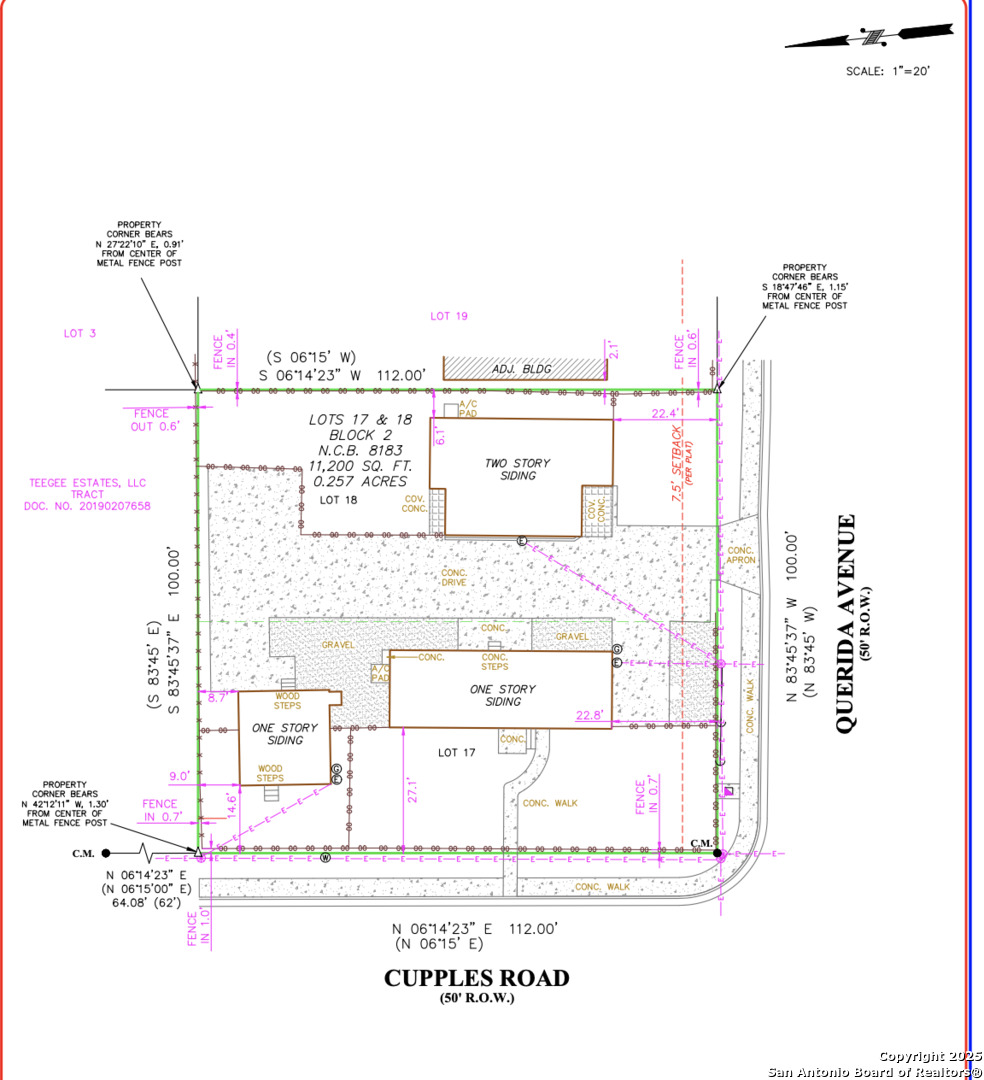
Lot Size0.257
Parking
Total Stories
CoolingUnit Central
School District Edgewood I.S.D
Schools
Fireplace
Property Type Two Story
property description

Unique property, recently re-developed with 3 separate homes. Situated on a corner lot, the property consists of a recently constructed 4-bedroom / 2.5 bathroom home, a fully renovated 2 bedroom / 1 bathroom home, and a fully renovated 1 bedroom / 1 bathroom home. All structures updated in 2022-2023 with new windows, siding, roofing, mechanical, electrical and plumbing and finish out. Each house has an individual address and individual water/electric meter.

LOCATION


Courtesy of Jadestone Real Estate

This real estate information comes in part from the Internet Data Exchange/Broker Reciprocity Program . Information is deemed reliable but is not guaranteed.
© 2017 San Antonio Board of Realtors. All rights reserved.