211 Mary Louise

San Antonio, TX 78201

211 Mary Louise

  • San Antonio, TX 78201
  • Monticello Park
  • $647000
  • 3Bed
  • 2.5Bath
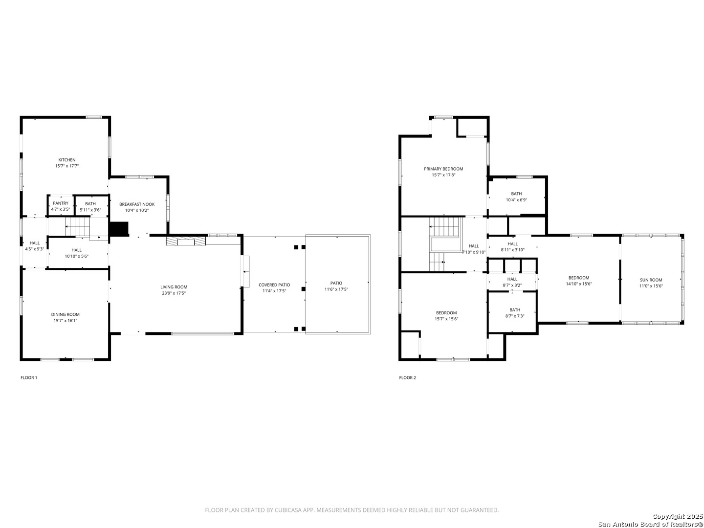
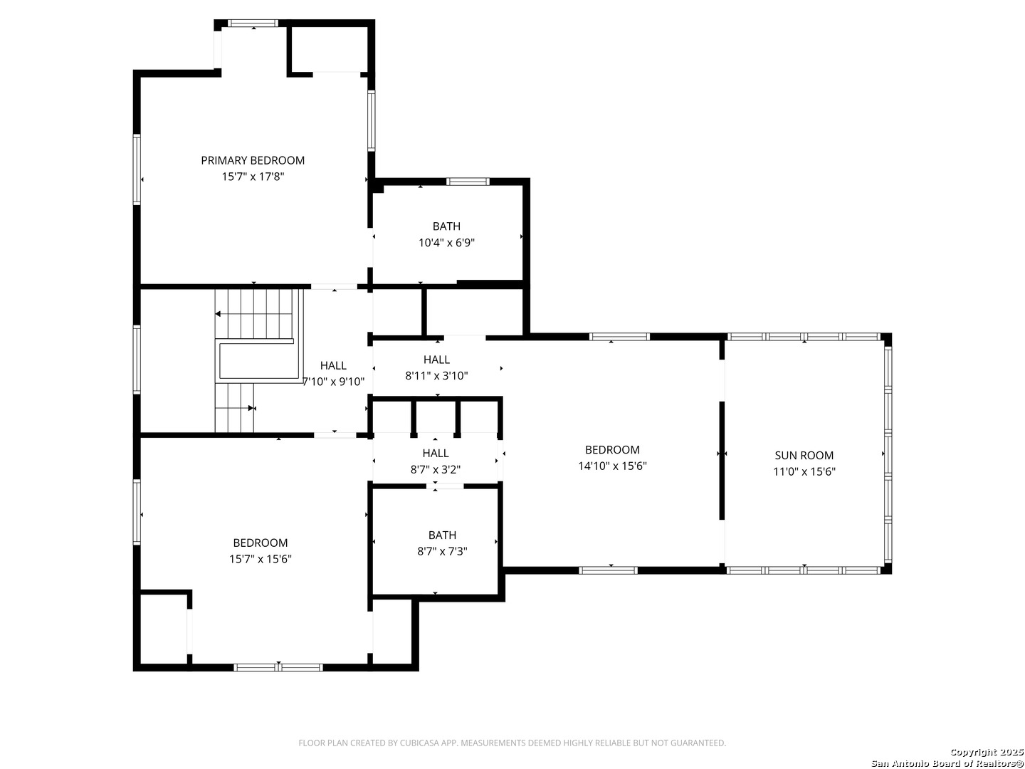
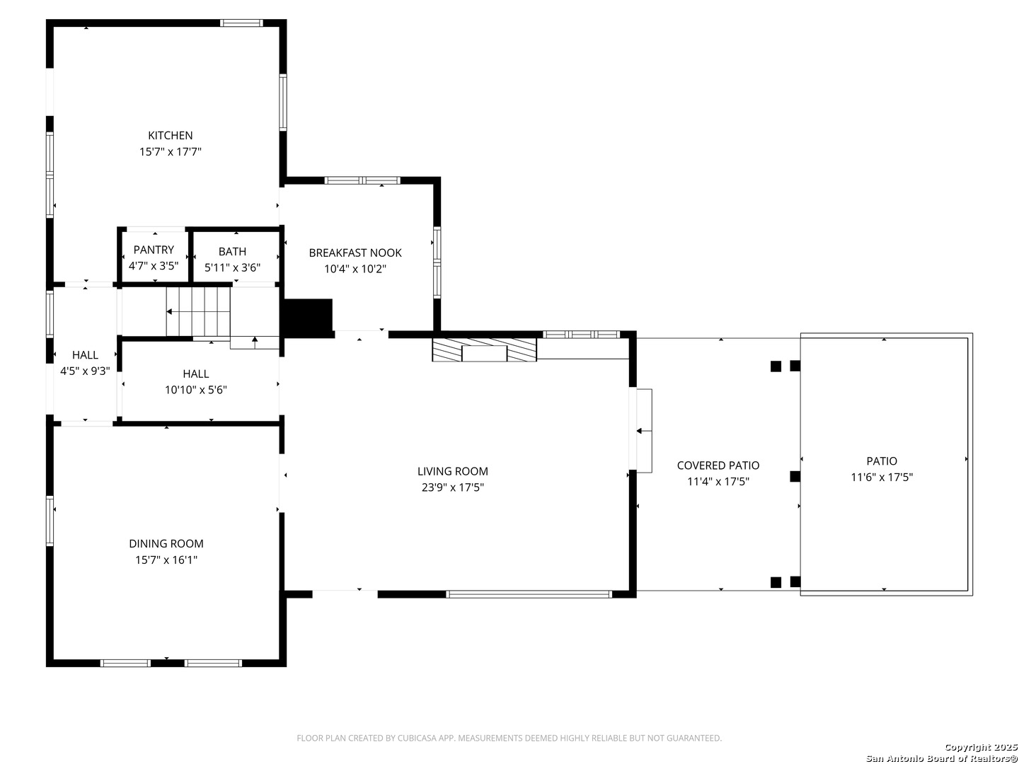
  • 2,912SQFT

Details

StatusActive
Year Built1930
CountyBexar
FlooringCeramic Tile, Wood
Lot Size0.293
ParkingNone/Not Applicable
Total Stories2
CoolingTwo Central
School District San Antonio I.S.D.
Schools Call District, Call District, Call District
FireplaceOne, Living Room
Property Type Single Family Detached
211 Mary Louise San Antonio TX 78201
property description

Owning a piece of history means being a part of the fabric of culture itself. This exquisite Tudor-inspired residence was built by the esteemed father/son team of architects Atlee B. and Robert Ayers in 1930. Famous for other San Antonio landmarks such as the McNay museum and the original Municipal Auditorium (now renovated into the Tobin), much of the culture of south-central Texas revolves around these impactful and thoughtful designers. At 2,912 sq. ft., this 3-bedroom, 2.5-bath home balances timeless craftsmanship with modern livability. Original plaster walls, wood-beamed ceilings, and distinctive "gingerbread" windows showcase the artistry of its era, while thoughtful updates ensure everyday comfort. Featuring a fully renovated custom kitchen, tankless water heater and full house filtration system, updated electric, central HVAC, and Historical Society-approved metal roof, this beautiful home is updated to efficient modern comfort while embracing the character and grandness that the home effuses. The spacious back yard provides privacy for soirees and drinks on the patio with a newly constructed 8 foot privacy fence and solar powered iron gate. A 720 sqft shed/ADU in the back is currently utilized as half storage, half mother-in-law suite with full bath and electrical. The structure is roomy enough to be transformed into a 2-story, 3 bedroom guest house, which could easily be rented out. "The reality is that old houses that were built a hundred years ago were built by actual craftsmen, people who were the best in the world at what they did. The little nuances in the woodwork, the framing of the doors, the built-in nooks, the windows-all had been done by smart, talented people, and I quickly found that uncovering those details and all of that character made the house more inviting and more attractive and more alive." Joanna Gaines, The Magnolia Story Nestled in the historic area of Monticello Park, when Mary Louise was first being developed in 1926 it was referred to as "The Million Dollar Street" and yet this one of a kind residence looks and feels priceless. Schedule your exclusive tour today.

LOCATION


Courtesy of Keller Williams City-view

This real estate information comes in part from the Internet Data Exchange/Broker Reciprocity Program . Information is deemed reliable but is not guaranteed.
© 2017 San Antonio Board of Realtors. All rights reserved.