21402 Encino Lookout

San Antonio, TX 78259

21402 Encino Lookout

  • San Antonio, TX 78259
  • Encino Mesa
  • $328000
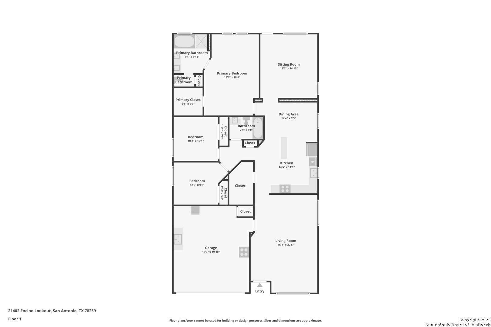
  • 3Bed
  • 2Bath
  • 1,668SQFT

Details

StatusActive
Year Built1999
CountyBexar
FlooringCeramic Tile, Laminate
Lot Size0.138
ParkingTwo Car Garage
Total Stories1
CoolingOne Central
School District North East I.S.D.
Schools Johnson, Tejeda, Encino Park
FireplaceNot Applicable
Property Type Single Family Detached
21402 Encino Lookout San Antonio TX 78259
property description

Welcome to this charming one-story home located in the desirable Encino Mesa community surrounded by mature trees. Boasting three spacious bedrooms, two full baths, this residence offers ample space for comfortable living. Enjoy the natural color palette throughout the home. The open-concept floor plan offers comfortable everyday living and easy entertaining. The chef of the house will love the spacious kitchen with plenty of cabinet and counter space, new dishwasher and new stove. Tile flooring throughout adds durability and style, and the home is truly move-in ready. The private primary suite includes a soaking tub, separate shower, and walk-in closet. This one level home with no steps, offers the perfect blend of convenience and tranquility. Don't miss out on the opportunity to make this gem your home!

LOCATION


Courtesy of Exp Realty

This real estate information comes in part from the Internet Data Exchange/Broker Reciprocity Program . Information is deemed reliable but is not guaranteed.
© 2017 San Antonio Board of Realtors. All rights reserved.