216 Sendera Way

Canyon Lake, TX 78133

216 Sendera Way

  • Canyon Lake, TX 78133
  • Ensenada Shores
  • $550000
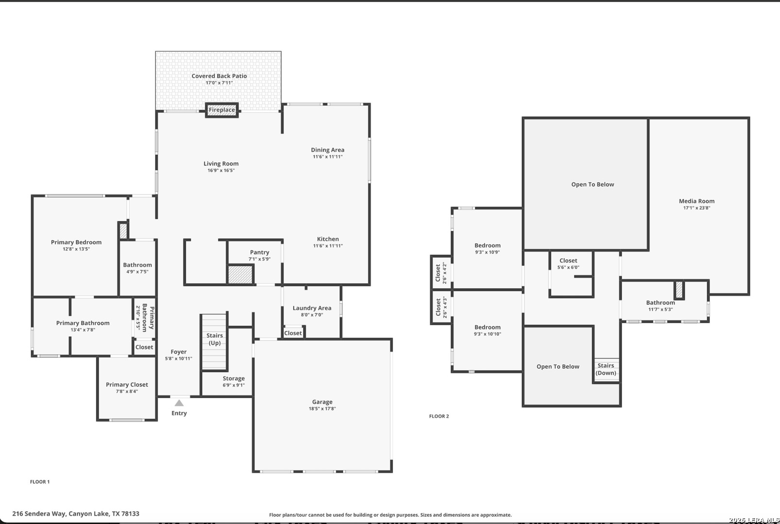
  • 3Bed
  • 3Bath
  • 3,077SQFT

Details

StatusActive
Year Built2026
CountyComal
FlooringOther
Lot Size1.009
ParkingTwo Car Garage, Attached, Oversized
Total Stories2
CoolingNot Applicable
School District Comal
Schools Canyon Lake, Mountain Valley, STARTZVILLE
FireplaceNot Applicable
Property Type Single Family Detached
216 Sendera Way Canyon Lake TX 78133
property description

OWNER FINANCING AVAILABLE - LOW DOWN PAYMENT, LOW INTEREST RATE! Incredible investment opportunity in a highly sought-after subdivision near Canyon Lake. This modern 3 bed / 3 bath, 3,077 sq ft home sits on a private 1-acre lot and is being sold AS-IS at $550,000. Estimated only 2 months of work remaining to complete, or purchase fully finished for $920,000. Located outside city limits with NO CITY TAXES. Perfect for an investor, builder, or homeowner looking to add instant equity. Open floor plan, high-end modern design, and prime Hill Country location make this a rare opportunity you won't find often. Finish it your way and maximize the upside!

LOCATION


Courtesy of Re/max Preferred, Realtors

This real estate information comes in part from the Internet Data Exchange/Broker Reciprocity Program . Information is deemed reliable but is not guaranteed.
© 2017 San Antonio Board of Realtors. All rights reserved.