2515 -- Boot Ranch Circle

Fredericksburg, TX 78624

2515 -- Boot Ranch Circle

  • Fredericksburg, TX 78624
  • Boot Ranch
  • $13750000
  • 4Bed
  • 5.5Bath
  • 9,052SQFT

Details

StatusActive
Year Built---
CountyGillespie
Flooring
Lot Size
Parking3+ Car, Attached, Garage
Total StoriesTwo
Cooling
School District
Schools Other
FireplaceMasonry
Property Type
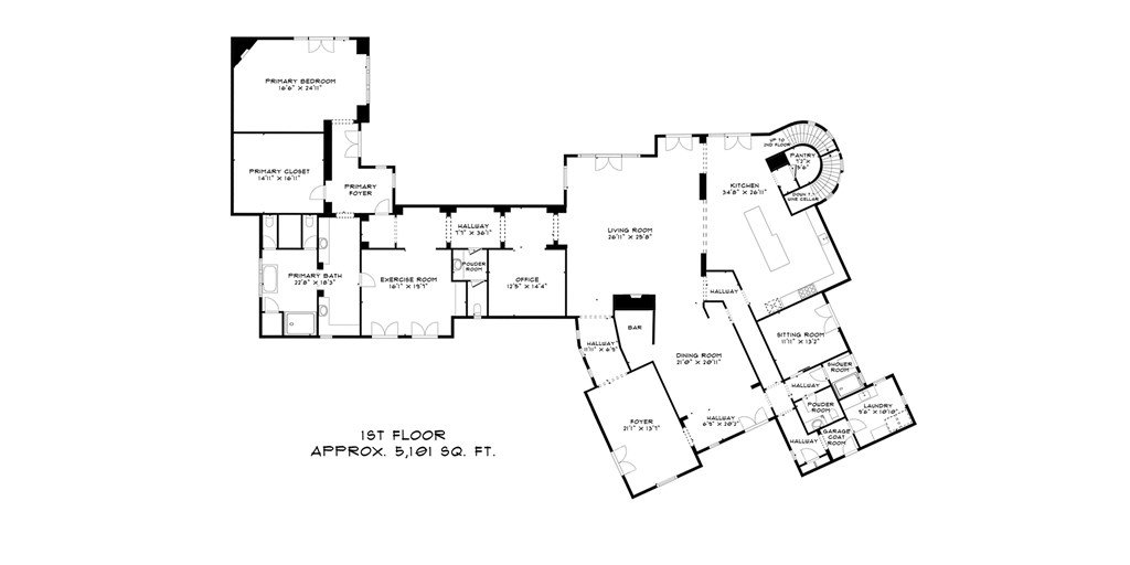
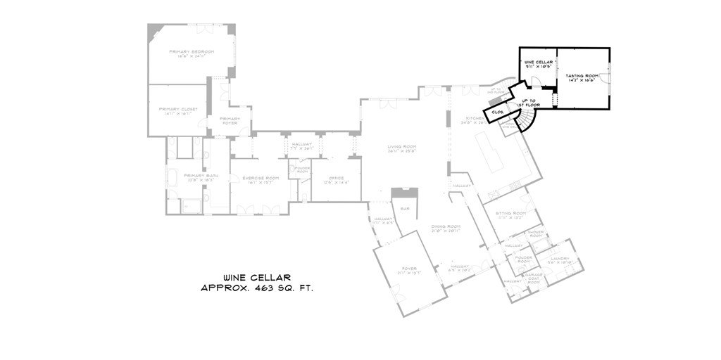
property description

This incredible property was one of the original homes to be designed and built for large acreage ranch-style living on the golf course. Residing on Boot Ranch Circle, this family compound is in the heart of Boot Ranch, and just a quick golf cart ride to the Clubhouse, Golf Shop, Ranch Club, and FIT Club. Completed in 2010, the home is designed for a big family and large-scale entertaining. Perched high on a hill, the east-facing covered back porches overlook a spectacular backyard with a pool, spa, and outdoor fireplace, overlooking hole 3. Design-wise, no detail was overlooked. The outdoor living space is truly fantastic with multiple seating areas overlooking the infinity pool and spa, with miles of views to the East over hole 3 as the backdrop. A family compound this size on 13+ acres is a rarity at Boot Ranch. Make it your family's legacy second home or a full-time residence for entertaining family and friends in the Hill Country. Don't miss your opportunity to become part of Boot Ranch, the finest private club community in Texas.

LOCATION


This real estate information comes in part from the Internet Data Exchange/Broker Reciprocity Program . Information is deemed reliable but is not guaranteed.
© 2017 San Antonio Board of Realtors. All rights reserved.