2619 S flores

San Antonio, TX 78204

2619 S flores

  • $679500
  • 3Bed
  • 2.5Bath
  • 2,298SQFT

Details

StatusActive
Year Built2025
CountyBexar
FlooringVinyl
Lot Size
ParkingOne Car Garage
Total Stories
CoolingOne Central
School District San Antonio I.S.D.
Schools Burbank, Harris, Briscoe
FireplaceNot Applicable
Property Type Low-Rise (1-3 Stories)
property description

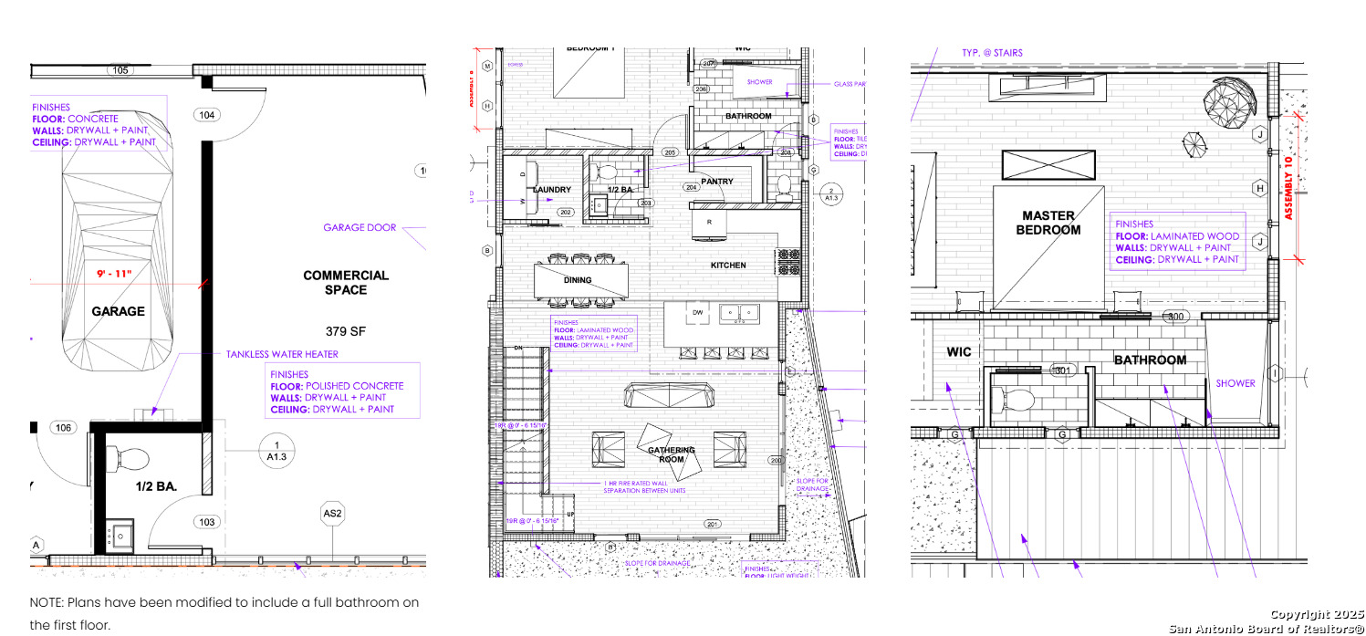
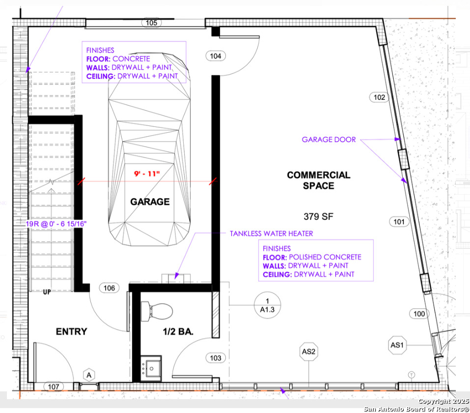
Smart design. Prime location. Endless possibilities. Introducing eight exclusive new-construction condos on South Flores, created for the modern urbanite who wants it all-location, lifestyle, and flexibility. Each residence includes a private entry, dedicated full bath, and flexible first-floor space that adapts to you. Use it as a home office, client studio, rental income suite, or even a fitness or creative space-the possibilities are endless. Inside, enjoy modern open layouts, clean-lined architecture, well-appointed kitchens, and abundant natural light. Private balconies and stylish finishes bring the perfect balance of form and function. Step outside and you're immersed in the vibrant, walkable energy of the city. Step inside and you're home-your own live/work sanctuary built for today's lifestyle. All information deemed reliable but not guaranteed. Buyer to verify all details. HOA and fees TBD.

LOCATION


Courtesy of Epique Realty Llc

This real estate information comes in part from the Internet Data Exchange/Broker Reciprocity Program . Information is deemed reliable but is not guaranteed.
© 2017 San Antonio Board of Realtors. All rights reserved.