503 Martin Luther King

San Antonio, TX 78203

503 Martin Luther King

  • San Antonio, TX 78203
  • Denver Heights
  • $299000
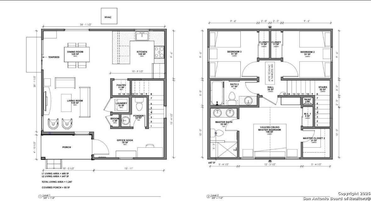
  • 3Bed
  • 2.5Bath
  • 1,246SQFT

Details

StatusPrice Changed
Year Built2026
CountyBexar
FlooringVinyl
Lot Size0.05
ParkingNone/Not Applicable
Total Stories2
CoolingOne Central
School District San Antonio I.S.D.
Schools Brackenridge, Poe, Douglass
FireplaceNot Applicable
Property Type Single Family Detached
503 Martin Luther King San Antonio TX 78203
property description

Welcome to 503 Martin Luther King - a brand-new single family home just 4 blocks from the Alamodome, right in the heart of San Antonio. Whether you're looking for a cozy urban home, short-term stay, a mid-term retreat, or a long-term rental, this property offers unmatched flexibility and convenience. Located just minutes from the River Walk, The Pearl, and all the vibrant hotspots that make San Antonio unique, 503 Martin Luther King offers easy access to all major highways-making your commute around the city effortless. This newly built home comes complete with a builder's warranty.

LOCATION


Courtesy of Real Broker, Llc

This real estate information comes in part from the Internet Data Exchange/Broker Reciprocity Program . Information is deemed reliable but is not guaranteed.
© 2017 San Antonio Board of Realtors. All rights reserved.