5334 Fenton

Belton, TX 76513

5334 Fenton

  • Belton, TX 76513
  • Three Creeks Ph Ii
  • $389000
  • 4Bed
  • 3.5Bath
  • 2,619SQFT

Details

StatusActive
Year Built2017
CountyBell
Flooring
Lot Size0.1377
Parking
Total Stories
CoolingElectric
School District Belton ISD
Schools
FireplaceNone
Property Type SingleFamilyResidence
property description

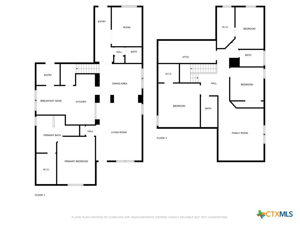
Discover your dream home in this spacious 4-bedroom, 3.5-bathroom residence featuring a dedicated office, formal dining room, and versatile upstairs loft/game room. Located in a peaceful neighborhood with access to scenic creeks and Stillhouse Hollow Lake just minutes away, this home offers the perfect blend of comfort, functionality, and natural beauty. Inside, you’ll find luxury vinyl plank wood flooring throughout the study, formal dining area, spacious living room, kitchen, and breakfast area. The open kitchen is designed for both everyday living and entertaining, featuring granite countertops, a center island, decorative tile backsplash, 42-inch cabinets with under-cabinet lighting, a large walk-in pantry, and a bright breakfast area. The utility room conveniently connects to the garage. The primary suite offers a relaxing retreat with a spacious bedroom, dual vanities, a large walk-in closet, and a separate ceramic tile shower. Upstairs you’ll find a large game room perfect for family gatherings, along with three additional bedrooms and two full bathrooms, providing plenty of space for family or guests. With generous living space, modern finishes, and a location close to nature and recreation, this home truly offers the best of both comfort and lifestyle, all at one of the best values in the area.

LOCATION


Courtesy of Magnolia Realty Temple Belton

This real estate information comes in part from the Internet Data Exchange/Broker Reciprocity Program . Information is deemed reliable but is not guaranteed.
© 2017 San Antonio Board of Realtors. All rights reserved.