859 Refugio

Victoria, TX 77905

859 Refugio

  • $249500
  • 2Bed
  • 1Bath
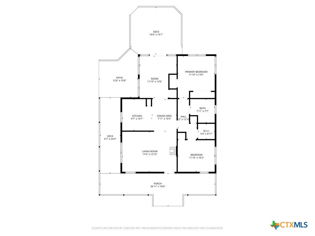
  • 1,070SQFT

Details

StatusActive
Year Built1950
CountyVictoria
Flooring
Lot Size0.49
ParkingDetached, Garage, Oversized
Total Stories
CoolingCentralAir, Electric, OneUnit
School District Victoria ISD
Schools
FireplaceFamilyRoom, LivingRoom, WoodBurning
Property Type SingleFamilyResidence
property description

Welcome to this charming and updated home located just minutes from Victoria, but still offering the peaceful feel of country living. Sitting on .49 of an acre, this property features mature trees, plenty of space for parking, and a 40X60 Shop. Step inside to an inviting layout, fresh paint, and updated flooring. The home features spacious bedrooms, an updated bathroom, and great natural lighting. Outside, enjoy a massive backyard with endless possibilities.

LOCATION


Courtesy of Re/max Land & Homes

This real estate information comes in part from the Internet Data Exchange/Broker Reciprocity Program . Information is deemed reliable but is not guaranteed.
© 2017 San Antonio Board of Realtors. All rights reserved.