9131 Port Hudson

San Antonio, TX 78245

9131 Port Hudson

  • San Antonio, TX 78245
  • Adams Hill
  • $135000
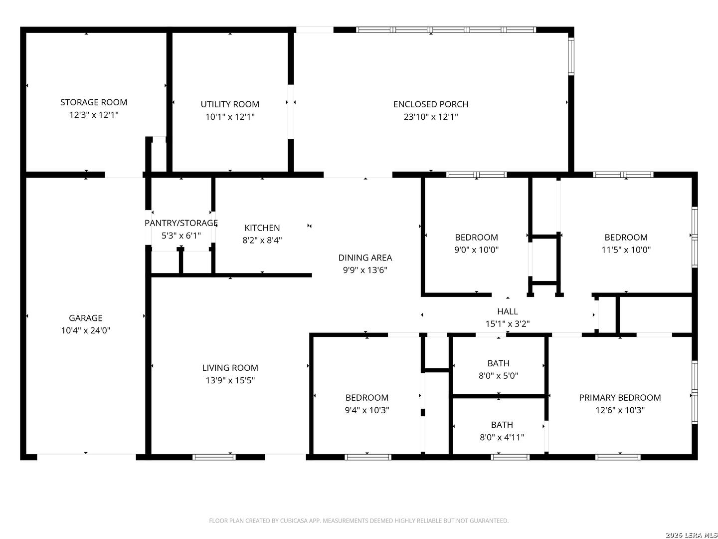
  • 4Bed
  • 2Bath
  • 1,200SQFT

Details

StatusActive
Year Built1972
CountyBexar
FlooringCeramic Tile
Lot Size0.191
ParkingOne Car Garage
Total Stories1
CoolingOne Central, 3+ Window/Wall
School District Northside
Schools Stevens, Pease E. M., Adams Hill
FireplaceNot Applicable
Property Type Single Family Detached
9131 Port Hudson San Antonio TX 78245
property description

INVESTOR SPECIAL - PRICED TO SELL! Opportunity awaits with this diamond in the rough tucked away on a quiet cul-de-sac. This 4-bedroom, 2-bath home with a 1-car garage offers great potential for investors, flippers, or buyers looking for their next renovation project. With the right vision and updates, this property can truly shine again. The spacious layout provides plenty of possibilities to redesign and add value. Conveniently located in NW SA with easy access to major highways, shopping, and schools. Cash offers only. Sold as-is. Don't miss this chance to transform a property with great upside potential. Bring your contractor and your vision!

LOCATION


Courtesy of Keller Williams City-view

This real estate information comes in part from the Internet Data Exchange/Broker Reciprocity Program . Information is deemed reliable but is not guaranteed.
© 2017 San Antonio Board of Realtors. All rights reserved.