9527 Midsomer Place

San Antonio, TX 78255

9527 Midsomer Place

  • San Antonio, TX 78255
  • Cantera Hills
  • $1690000
  • 4Bed
  • 3.5Bath
  • 3,624SQFT

Details

StatusActive
Year Built2025
CountyBexar
FlooringWood, Other
Lot Size1.1
ParkingThree Car Garage
Total Stories1
CoolingThree+ Central
School District Northside
Schools Clark, Rawlinson, Locke Hill
FireplaceNot Applicable
Property Type Single Family Detached
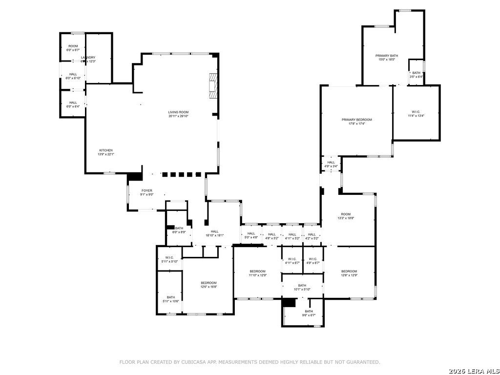
9527 Midsomer Place San Antonio TX 78255
property description

***OPEN HOUSE this weekend Fri Oct 10th & Sat Oct 11th from 12-4pm****Experience refined living in this exquisite custom home, thoughtfully designed to balance elegance and comfort. Featuring four generously sized bedrooms, including a serene master retreat with a spa-inspired bath, a private guest suite with en-suite bath, and two additional bedrooms joined by a Jack and Jill, every space offers comfort and sophistication. An expansive open flex space is ideal for a playroom, home office, or second living area. Entertain in style in the formal dining room and elegant living space, complemented by a chic powder bath. At the heart of the home lies a stunning central terrace; an architectural showpiece and a peaceful haven perfect for indoor/outdoor living. Luxury and livability come together seamlessly in this one-of-a-kind property.

LOCATION


Courtesy of Avenue Realty Llc

This real estate information comes in part from the Internet Data Exchange/Broker Reciprocity Program . Information is deemed reliable but is not guaranteed.
© 2017 San Antonio Board of Realtors. All rights reserved.