306 Ash

Ganado, TX 77962

306 Ash

  • Ganado, TX 77962
  • Twin Oaks
  • $299000
  • 3Bed
  • 3Bath
  • 2,036SQFT

Details

StatusActive
Year Built1970
CountyJackson
Flooring
Lot Size0.4853
ParkingAttached, GarageFacesFront, Garage
Total Stories
CoolingElectric, OneUnit
School District Ganado ISD
Schools
FireplaceElectric, LivingRoom
Property Type SingleFamilyResidence
property description

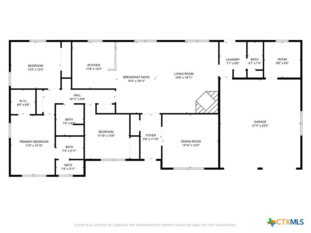
This 3-bedroom, 3-bath home truly has it all—spacious living areas, a dream kitchen with granite countertops, and a formal dining room perfect for gatherings. The cozy electric fireplace creates the heart of the home, while the full bath off the utility adds everyday convenience. A 2-car garage with workshop space makes plenty of room for hobbies and storage. Down the hallway, you’ll find thoughtful touches throughout—a walk-in cedar closet, a generous linen closet, and two bedrooms that share a spacious full bath with a tub/shower combo. The primary suite is its own retreat, featuring a large walk-in closet, private bath with walk-in shower, built-in cabinetry, and a makeup vanity area. Step outside and enjoy the oversized patio and deck overlooking a beautiful, tree-shaded lot. Mature trees provide privacy and peaceful views, making it the perfect setting for morning coffee or evenings entertaining friends and family.

LOCATION


Courtesy of Jla Realty

This real estate information comes in part from the Internet Data Exchange/Broker Reciprocity Program . Information is deemed reliable but is not guaranteed.
© 2017 San Antonio Board of Realtors. All rights reserved.